首安技術資料
聯系我們
- 聯系人:郭經理
- 傳真:010-69552656
- 電話:400-0346-119
- 電話:010-57491119
- 郵箱:506665119@qq.com
- 地址:北京通州區M5運河1號3號樓403室
首安SL-5302二區氣體滅火控制器(壁掛式)
時間:2018-11-12 13:56:48 品牌:
![[!--oldtitle--]](/d/file/qitimiehuo/2018-11-12/e1d3609d20420daa767fb8d8928fd52e.jpg)
氣體滅火常用于計算機房等不宜用水滅火的重要場合。SL-5302氣體滅火控制器帶有30秒延時功能,可以直接控制現場設備聲光警報器,放氣門燈及鋼瓶;可以接收放氣后鋼瓶管網壓力開關的反饋信號;可以在現場通過緊急啟停按鈕啟動鋼瓶和停止放氣,在自動啟動、強制啟動和現場緊急啟動時均有30秒延時啟動功能,在延時時間內按停止鍵或緊急停止按鈕可以取消啟瓶命令。SL-5302兩區氣體滅火控制器(壁掛式)可控制2個防火分區的滅火,啟動控制信號除了來自控制器組合邏輯外,還可來自它本身的啟動按鈕。氣體滅火控制器滿足--標準GB16806-2006《消防聯動控制系統》中關于氣體滅火控制器的相關要求。
二、首安SL-5302二區氣體滅火控制器主要特點
(1)中文信息顯示。
(2)通過CAN總線與火災報警控制器通訊,接收和發送命令與顯示信息等。
(3)有自動和手動控制方式切換,有自動、手動啟動功能、每路能獨立啟動/停止本路控制的現場設備(聲光,氣體滅火設備)。
(4)每區有兩路以上控制輸出:每路輸出有兩種方式,空接點(2A)和DC24V[-大輸出電流:2A(單路),具有瞬時泄放能力],每路動作后要有動作指示。
(5)每路輸出可以設置0~30s延時,延時要求有倒計時功能,能夠記錄信息的時間,在延時時間內按停止鍵或緊急停止按鈕可以取消啟瓶命令。
(6)有現場緊急啟動及緊急停止功能。
(7)有自檢功能和故障檢測功能。
(8)電源:獨立的220V供電,有備用電池。
(9)延時有倒計時顯示,延時時間可以設置。
(10)有強制啟動功能。
三、SL-5302二區氣體滅火控制器主要技術指標
型號:SL-5302
類型:氣體滅火控制器
主電:AC220V/5A
備電電池:DC12V/7AH*2
輸出電壓:DC24V(單路)
工作環境溫度:0~45℃
工作環境相對濕度:≤95%RH(40±2℃)
儲存溫度:不低于-40℃
安裝方式:壁掛
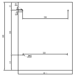
外形尺寸:400*500*120(長、高、寬)
四、SL-5302氣體滅火控制器外形與結構尺寸圖
SL-5302氣體滅火控制器外形與結構尺寸圖
五、首安SL-5302氣體滅火控制器安裝尺寸
首安SL-5302氣體滅火控制器安裝尺寸







